Attività in vendita

Premolo, Via Ranica
€ 110.000
190 Mq 190 Mq
2 bagni 2 bagni

Attività in vendita

Premolo, Via Ranica

Descrizione annuncio

PREMOLO

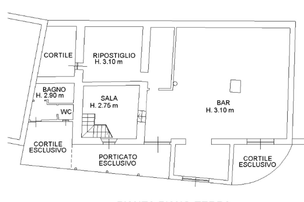
Proponiamo in vendita un locale commerciale adibito a bar, semi attrezzato e recentemente ristrutturato, pronto per riprendere vita!

L’ambiente principale è ampio e luminoso, con bancone spazioso e cucina collegata direttamente alla sala.

Due salette laterali permettono di creare angoli riservati per la clientela.

Sul retro, una grande cantina offre spazio extra per stoccaggio e forniture.
Il bagno esterno, completamente a norma per disabili, completa la parte interna.
All’esterno, troviamo uno spazio all’aperto che consente di allestire tavolini per la stagione estiva — perfetto per aperitivi o colazioni all’aria aperta.

Un locale con carattere, pronto per essere personalizzato secondo il tuo stile!

Mostra tutto

Nelle vicinanze

Trasporto pubblico Trasporto pubblico
Trasporto pubblico
900 m
Ricariche auto elettriche Ricariche auto elettriche
Parre Palazzetto dello Sport
1,6 Km
Scuole Scuole
scuole elementari
770 m
Scuole
770 m
Scuole Medie
770 m
Scuole elementari
1,5 Km
Polo Scolastico Unico
2,3 Km
Farmacia Farmacia
Farmacia
930 m
Supermercati Supermercati
Cossali market
810 m
parigi market
830 m
Carrefour
980 m
Negozi Negozi
Negozi
820 m
alimentari castelletti
830 m
Supermercato del tessile
1,1 Km
Bar Bar
Bar Iride
730 m
goat cafe (iride)
730 m
Bar Empire
820 m
calamina cafè
840 m
bar centralino
840 m
Ristoranti Ristoranti
Ristoranti
830 m
Centro Sportivo Master
1,0 Km
Miravalle
1,5 Km
Ristorante La Pesa
2,1 Km
Pizzeria la briciola
2,8 Km
Mostra tutto

Caratteristiche

Rif.:
61137424
Totale piani:
2
Condizionamento:
Assente
Ascensore:
No
Riscaldamento:
Autonomo
Libero:
Mostra tutto
Prezzo Prezzo
€ 110.000
Rata mutuo Rata mutuo
€ 507 / mese
Spese annue Spese annue
€ 0
Proponi il tuo prezzoProponi il tuo prezzo

Altre caratteristiche

Descrizione dei locali
Bagno Con Finestra

Classe Energetica

C
C
C
C
C
C
C
C
C
EP globale rinnovabile:
1003.86 kW h/m² anno
EP invernale del fabbricato:
EP estiva del fabbricato:
Anno di costruzione:
1945
Riscaldamento:
Autonomo
Tipo impianto:
A radiatori
Tipo alimentazione:
Metano

Ti interessa visionare l'immobile?

Fissa un appuntamento  Fissa un appuntamento

Richiedi informazioni

* Questi campi sono obbligatori

Calcola il tuo mutuo

Semplice e senza impegno
Anticipo

( % )
Mutuo

( % )

pochi semplici passi

inserisci i tuoi dati
Questionario completato
Grazie per aver richiesto un appuntamento senza impegno con un nostro Consulente del Credito e Assicurativo.

Hai inserito correttamente tutti i dati necessari e a breve riceverai una e-mail con un link da convalidare per inviare i tuoi dati.
Affiliato
Tecnoclusone Srl
Via Gusmini, 11 24023 Clusone (BG)

Il nostro staff


  • Luana Fornoni
    Collaboratrice

  • Denis Milesi
    Collaboratore

  • Matteo Valenti
    Affiliato
Via Gusmini, 11 24023 Clusone (BG)
Zona: Clusone
Mostra su mappa
Affiliato
Tecnoclusone Srl
Via Gusmini, 11 24023 Clusone (BG)

2025 Tecnocasa Franchising S.p.A. - P. IVA 08365160152 - Via Monte Bianco 60/A 20089 Rozzano (MI). Ogni agenzia ha un proprio titolare ed è autonoma. Privacy policy | Policy utilizzo | Cookie policy