Quadrilocale in vendita

Onore, Piazza Pozzo
€ 75.000
Prezzo aggiornato
4 locali 4 locali
109 Mq 109 Mq
2 bagni 2 bagni

Quadrilocale in vendita

Onore, Piazza Pozzo

Descrizione annuncio

ONORE

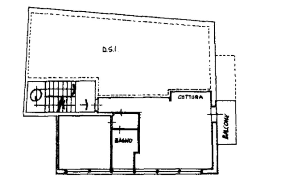
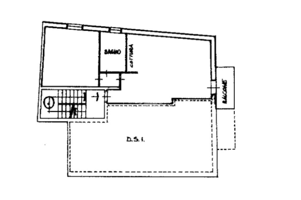
In posizione ben servita nel comune di Onore, proponiamo luminoso quadrilocale al secondo piano, caratterizzato da spazi generosi e ben distribuiti.

L’ingresso conduce all’ampio soggiorno e alla cucina abitabile, entrambi con accesso diretto al terrazzo.

La zona notte comprende due camere matrimoniali e doppi servizi, garantendo comfort e funzionalità a famiglie o a chi desidera ambienti ampi e versatili.

Completano la proprietà box privato e cantina.

Nota interessante: essendo frutto dell’unione di due unità, vi è la possibilità di acquistare anche solo una porzione dell’immobile, attualmente configurata come bilocale.

Mostra tutto

Nelle vicinanze

Trasporto pubblico Trasporto pubblico
Trasporto pubblico
820 m
Scuole Scuole
Scuole
190 m
Farmacia Farmacia
Farmacia
60 m
Supermercati Supermercati
Supermercati
20 m
Negozi Negozi
Negozi
2,1 Km
Alimentari Milesi
3,0 Km
Bar Bar
Bar
120 m
Bar Freedom
1,9 Km
Caffè Vicolo
2,1 Km
Oratorio
2,5 Km
Ristoranti Ristoranti
Ristoranti
240 m
Agriturismo Prato Alto
860 m
La baitella
1,2 Km
Vecchia Costa d'Oro
1,7 Km
Blum In
1,8 Km
Mostra tutto

Caratteristiche

Rif.:
61153194
Piano:
2 di 4 (Piano medio)
Box:
1
Terrazzi:
1
Camere da letto:
2
Arredamento:
Completo
Mostra tutto
Prezzo Prezzo
€ 75.000
Rata mutuo Rata mutuo
€ 350 / mese
Spese annue Spese annue
€ 0
Proponi il tuo prezzoProponi il tuo prezzo

Classe Energetica

Questo immobile è esente da classe energetica
Anno di costruzione:
1967
Riscaldamento:
Autonomo
Tipo impianto:
A radiatori
Tipo alimentazione:
Metano

Prezzo ridotto di €1 (12%%)

Ti interessa visionare l'immobile?

Fissa un appuntamento  Fissa un appuntamento

Richiedi informazioni

Clicca su Leggi per aprire l'informativa
* Questi campi sono obbligatori

Calcola il tuo mutuo

Semplice e senza impegno
Anticipo

( % )
Mutuo

( % )

pochi semplici passi

inserisci i tuoi dati
Questionario completato
Grazie per aver richiesto un appuntamento senza impegno con un nostro Consulente del Credito e Assicurativo.

Hai inserito correttamente tutti i dati necessari e a breve riceverai una e-mail con un link da convalidare per inviare i tuoi dati.
Affiliato
Tecnoclusone Srl
Via Gusmini, 11 24023 Clusone (BG)

Il nostro staff


  • Luana Fornoni
    Coordinatrice

  • Denis Milesi
    Collaboratore

  • Filippo Pecis
    Collaboratore

  • Sergio Simonetti
    Collaboratore

  • Matteo Valenti
    Affiliato
Via Gusmini, 11 24023 Clusone (BG)
Zona: Clusone
Mostra su mappa
Affiliato
Tecnoclusone Srl
Via Gusmini, 11 24023 Clusone (BG)

2026 Tecnocasa Franchising S.p.A. - P. IVA 08365160152 - Via Monte Bianco 60/A 20089 Rozzano (MI). Ogni agenzia ha un proprio titolare ed è autonoma. Privacy policy | Policy utilizzo | Cookie policy